Береговой проезд, 5А
№ лота
16433
- Район
- Филёвский Парк
- Метро
- Фили
- Жилой комплекс
- ФИЛИ ГРАД
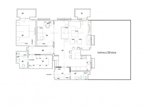
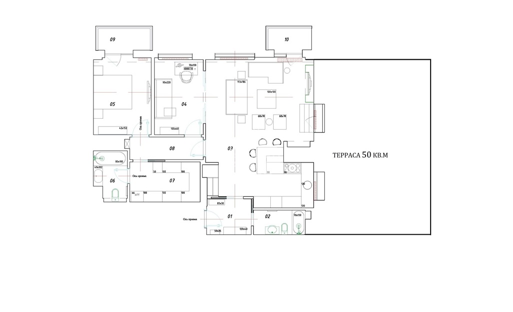
- Общая площадь
- 153.6 м2
- Площадь кухни
- 20 м2
- Количество комнат
- 3
- Этаж
- 17 из 17
- Высота потолков
- 3 м
- Отделка
- Да
- Паркинг
- Да
- Летние помещения
- Нет
- Пентхаус
- Да
- Год постройки
- 2015
- Тип балкона
- 2 лоджии
- Тип дома
- Монолит
- Ремонт
- Дизайнерский ремонт
Описание
Аренда. Уникальный, стильный пентхаус с открытой террасой!
Великолепные панорамные виды на Москву.
Функциональная планировка апартамента: кухня-столовая, гостиная, мастер-спальня, вместительная гардеробная, детская спальня/кабинет, 2 больших санузла, прихожая, открытая благоустроенная терраса.
Высокие потолки - 3 м.
Авторский дизайн-проект.
Высококачественные экологичные отделочные материалы.
Техника ведущих мировых производителей (NEFF, Bosch, винный шкаф Cellar Private, 2 встроенных холодильника, телевизор LG, телевизор Phillips, стиральная машина LG, био-камин, встроенная потолочная аудио система.
Пол: паркетная доска - натуральный дуб, плитка - с подогревом.
Приточно-вытяжная вентиляция и кондиционирование воздуха.
Многоуровневая система безопасности, консьерж-служба, системы круглосуточного видеонаблюдения.
Подземный паркинг, мойка, шиномонтаж.
Инфраструктура комплекса: детский сад и начальная школа, детская и спортивная площадки; ТЦ Фили Град -супермаркет Перекресток, фитнес- клуб с бассейном, кафе и рестораны, салоны красоты, аптеки, химчистки, зоомагазин, гостевой подземный паркинг.
Развитая инфраструктура района: детский парк "Фили", школа искусств Алябьева А.А., спорткомплекс и школа олимпийского резерва, общеобразовательные школы, бассейн, супермаркеты, ТЦ Филион.
В пешей доступности благоустроенная набережная Москва-реки, Филевский парк.
Идеальное расположение и транспортная доступность: Москва-Сити, исторический центр Москвы; удобные выезды на Кутузовский проспект, Звенигородское шоссе, ТТК.
Метро Фили - 10 минут пешком.
