Бутырская улица, 1
Описание
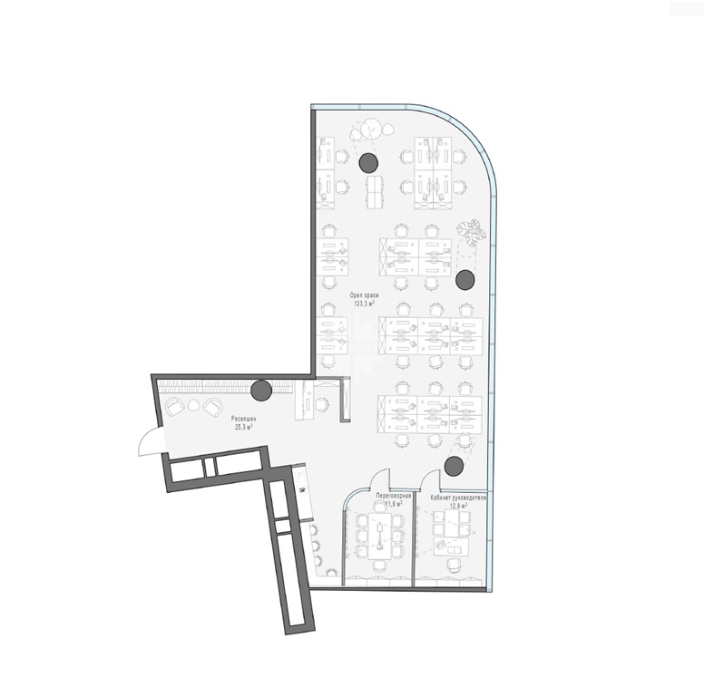
Видовой офис с панорамным остеклением на две стороны света (север и восток) в Деловом Центре TWIST. Ориентирован на улицу Бутырскую и Сущевский Вал.
Свободная планировка и минимальное количество несущих конструкций позволяют максимально эффективно зонировать пространство. Панорамное остекление обеспечивает максимальное количество естественного освещения в дневное время и динамичный вид на город в вечернее. Наличие мокрой точки позволяет организовать в офисе кухню или дополнительные санузлы.
Высота потолков 3,5 м. Электрическая мощность 7,2 кВТ.
Деловой центр Twist специально создан для размещения клиентских офисов. Он отличается исключительной транспортной доступностью: расположен прямо у станции метро «Савёловская», непосредственно у ТТК.
Это прогрессивный деловой центр с безбарьерной системой доступа, которая сделала для клиентов проход к офисам быстрым, простым и комфортным. Новый дружелюбный стандарт безопасности здания освобождает от турникетов и необходимости оформлять пропуск.
В Twist создана насыщенная инфраструктура для неформального общения с клиентами.
Twist расположен на перекрёстке крупных дорог и виден со всех сторон — здание привлекает взгляды и заметно издалека. В 2023 году Twist получил престижную Архитектурную премию Москвы как лучший деловой центр.
Twist небольшой и уютный. В нём всего 56 офисных лотов и девять этажей. В Twist широкий выбор офисов, которые производят впечатление на клиентов: от 50 кв. м до целых этажей разной площади, включая офисы со своими террасами.
Премиальный деловой центр обладает самыми прогрессивными и полными системами комфорта.
О резидентах и здании заботится Служба комфорта Smineх, которая предлагает сервис уровня 5-звёздочных отелей и сохраняет изначальный облик и концепцию здания.
Девелопер проекта — Sminex, перфекционисты Fine Development. Компания обладает 24-летним опытом строительства жилой и коммерческой недвижимости, создаёт комфортную и престижную среду. В 2022 году Sminex приобрёл девелопера «Интеко», в 2024 году — Ingrad.
Класс здания: А
Тип здания: монолитное
Этажность: 9
Количество корпусов: 1
Количество офисов: 56 (площади офисов — от 50 до 1471 кв. м)
Количество помещений ретейла: 19 (площади — от 16 до 529 кв. м)
Высота потолков, офисы: 3,4–3,8 м
Высота потолков, ретейл: 3,2–4,9 м
Паркинг: 55 машино-мест
Богатая инфраструктура: 4 ресторана, кофейня, столовая и магазины. Две террасы на открытом воздухе для резидентов
