ТАУНХАУС ПОД КЛЮЧ
- Тип сделки
- Аренда
- Направление
- Рублево-Успенское
- Удаленность от МКАД
- 20 км
- Населённый пункт
- Одинцовский городской округ, Горки-2 пос.
- Коттеджный посёлок
- ЛЕСНОЙ ПРОСТОР
- Общая площадь дома
- 308 м2
- Площадь участка
- 5.85 сот.
- Таунхаус
- Нет
Описание
Предлагается в аренду таунхаус в охраняемом элитном коттеджном посёлке в 15 минутах от Москвы по платной трассе М-1. Территория поселка круглосуточно патрулируется. В непосредственной близости магазины, спорткомплекс, бассейн, школа, детский сад, рынок, госпиталь, перинатальный центр.
- Площадь таунхауса 308 м2
- 3 этажа
- 2 спальни, возможно сделать третью
- Участок 5,85 соток, ИЖС
- СПА-зона, гараж на 2 машины, 2 крытые террасы на участке
Сантехника Hansgrohe, Duravit. Кухня Leicht, техника на кухне и в постирочной - Miele. Камин отделан мраморными слэбами, топка Hoxter.
На участке установлены две крытые террасы, хозяйственный блок. Использован натуральный камень песчаник, автоматический полив, высажены эксклюзивные ели, привезённые из Германии. Выполнена декоративная подсветка Центрсвет.
Планировочное решение:
Цокольный этаж: зона СПА с сауной, душевой, кухней, туалетом, помещением с дополнительным гостевым спальным местом, спортивным залом. Отдельно выполнена постирочная комната и кладовая.
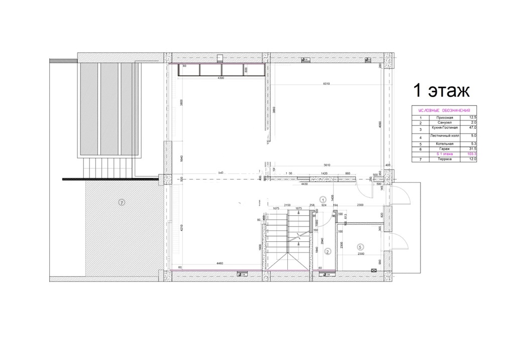
Первый этаж: гараж на две машины, котельная, санузел с душем, кухня-гостиная с камином и выходом в сад.
Второй этаж: две жилые комнаты, одна из которых - мастер-спальня с гардеробной и санузлом. На этаже два санузла, подсобное помещение. Санузлы с панорамными окнами с зеркальной поверхностью с внешней стороны, что обеспечивает полную приватность при использовании санузлов.
Подкровельное пространство - сухое не отапливаемое. 70 кВ.м.
В доме разведено газовое отопление, тёплые полы, батареи, установлены современные воздушные вентиляционные фильтры, обеспечивающие полную экологичность и чистоту воздуха, на верхнем этаже дополнительно установлены кондиционеры. Цокольный этаж гидроизолирован по двум технологиям, подкровельное пространство также гидроизолировано.
В доме установлена система фильтрации воды, автоматичная система бесперебойного электропитания на 8 часов, защита от протечек воды. Установлено видеонаблюдение и усиление сотовой связи на всех этажах дома. Окна итальянские, энергоэффективный. На всех окнах - москитные сетки.
