ТАУНХАУС ПОД КЛЮЧ
- Тип сделки
- Продажа
- Направление
- Рублево-Успенское
- Удаленность от МКАД
- 20 км
- Населённый пункт
- Одинцовский городской округ, Горки-2 пос.
- Коттеджный посёлок
- ЛЕСНОЙ ПРОСТОР
- Общая площадь дома
- 308 м2
- Площадь участка
- 5.85 сот.
- Таунхаус
- Да
Описание
Предлагается к продаже таунхаус в охраняемом элитном коттеджном посёлке в 15 минутах от Москвы по платной трассе М-1. Территория поселка круглосуточно патрулируется. В непосредственной близости магазины, спорткомплекс, бассейн, школа, детский сад, рынок, госпиталь, перинатальный центр.
- Площадь таунхауса 308 м2
- 3 этажа
- 2 спальни, возможно сделать третью
- Участок 5,85 соток, ИЖС
- СПА-зона, гараж на 2 машины, 2 крытые террасы на участке
Таунхаус выполнен в стиле минимализм в лаконичных оттенках, что не ограничивает нового владельца в реализации своего вкуса. В отделке стен использована итальянская матовая штукатурка. Сантехника Hansgrohe, Duravit. Кухня Leicht, техника на кухне и в постирочной - Miele. Камин отделан мраморными слэбами, топка Hoxter. Предлагается к продаже частично меблированным.
На участке установлены две крытые террасы, хозяйственный блок. Использован натуральный камень песчаник, автоматический полив, высажены эксклюзивные ели, привезённые из Германии. Выполнена декоративная подсветка Центрсвет.
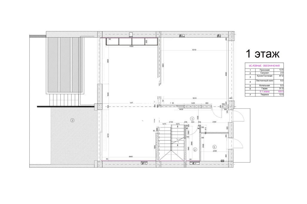
Планировочное решение:
Цокольный этаж: зона СПА с сауной, душевой, кухней, туалетом, помещением с дополнительным гостевым спальным местом, спортивным залом. Отдельно выполнена постирочная комната и кладовая.
Первый этаж: гараж на две машины, котельная, санузел с душем, кухня-гостиная с камином и выходом в сад.
Второй этаж: две жилые комнаты, одна из которых - мастер-спальня с гардеробной и санузлом. На этаже два санузла, подсобное помещение. Санузлы с панорамными окнами с зеркальной поверхностью с внешней стороны, что обеспечивает полную приватность при использовании санузлов.
Подкровельное пространство - сухое не отапливаемое. 70 кВ.м.
В доме разведено газовое отопление, тёплые полы, батареи, установлены современные воздушные вентиляционные фильтры, обеспечивающие полную экологичность и чистоту воздуха, на верхнем этаже дополнительно установлены кондиционеры. Цокольный этаж гидроизолирован по двум технологиям, подкровельное пространство также гидроизолировано.
Есть проекты всей инженерии, архитектуры, дизайна дома и участка. В доме установлена система фильтрации воды, автоматичная система бесперебойного электропитания на 8 часов, защита от протечек воды. Установлено видеонаблюдение и усиление сотовой связи на всех этажах дома. Окна итальянские, энергоэффективный. На всех окнах - москитные сетки.
