Якиманский переулок, 6
- Район
- Якиманка
- Метро
- Октябрьская
- Жилой комплекс
- ИМПЕРСКИЙ ДОМ
- Общая площадь
- 430 м2
- Площадь кухни
- 15 м2
- Количество комнат
- 5
- Этаж
- 12 из 12
- Отделка
- Нет
- Паркинг
- Да
- Летние помещения
- Да
- Пентхаус
- Да
- Год постройки
- 2010
- Тип балкона
- балкон
- Тип дома
- Монолит
- Ремонт
- Без отделки
- Стоимость
- по запросу
Описание
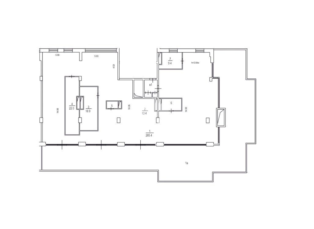
Видовой пентхаус с террасой в респектабельном жилом комплексе "Имперский дом". Общая площадь 430 кв.м, площадь террасы 210 кв.м.
Роскошные виды на Москва-Сити, Парк Горького, Университет, Москва-реку, Храм Христа Спасителя.
Предлагается к продаже без отделки. Высота потолков 4 метра. Пространство позволяет организовать 5 комнат, 3 санузла, гардеробные.
Предусмотрены 2 машино-места в подземном паркинге.
"Имперский дом" расоложен в одном из самых престижных районов столицы, в окружении исторических и архитектурных достопримечательностей, в центре культурной и деловой жизни города.
Стилистически выдержанный в традициях "сталинского ампира", "Имперский дом" композиционно представляет собой ансамбль из трех зданий, соединённых галереей. Входные группы представительского уровня декорированы мрамором и редкими породами дерева. На придомовой территории выполнен ландшафтный дизайн, оборудована детская площадка. В подземной части здания размещена автомобильная парковка.
