Малая Сухаревская площадь
№ лота
16578
- Район
- Мещанский
- Метро
- Сухаревская
- Жилой комплекс
- PHANTOM (ФАНТОМ)
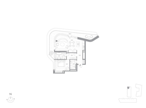
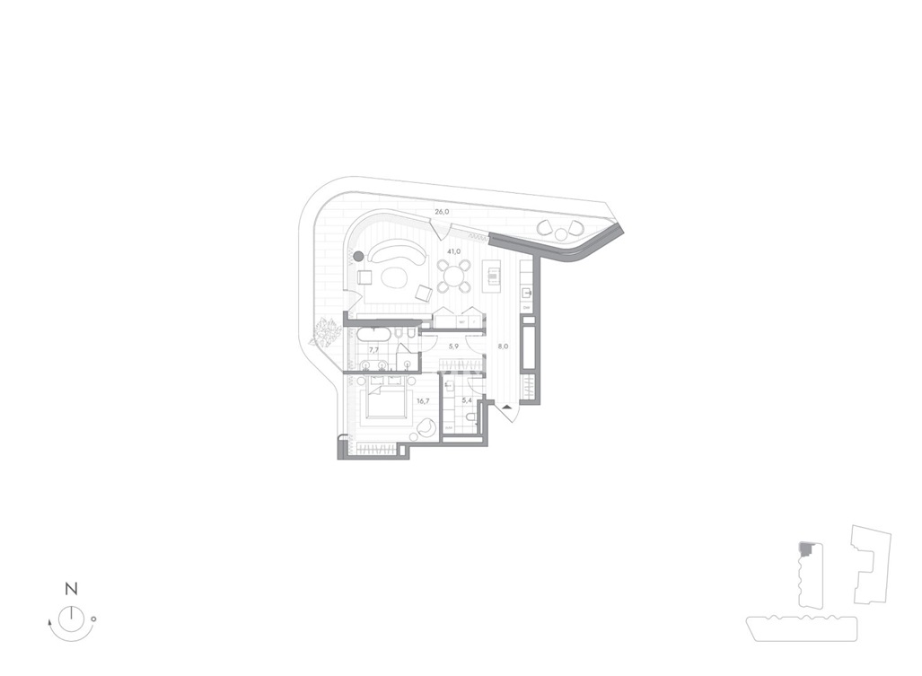
- Общая площадь
- 92.5 м2
- Количество комнат
- 2
- Этаж
- 3 из 9
- Отделка
- Да
- Паркинг
- Да
- Пентхаус
- Нет
- Год постройки
- 2027
- Тип дома
- Монолит
Описание
Квартира с одной спальней в новом элитном жилом комплексе Фантом в районе Сухаревской площади.
Планировкой предусмотрено: просторная кухня-гостиная, спальня, 2 санузла и дополнительные зоны хранения.
Видовые характеристики: из кухни-гостиной предусмотрены два выхода на панорамную видовую террасу (26м2), из которой открывается роскошный вид на Садовое кольцо и Цветной бульвар. Окна спальни выходят на Цветной бульвар.
Квартира предлагается к продаже с премиальной отделкой и полностью оборудованными санузлами и кухней. В отделке использованы натуральное дерево и камень.
ФАНТОМ — территория безупречного комфорта и приватности.
Это делюкс-резиденции, где за футуристичным обликом скрывается уединенное пространство для жизни высшего качества.
Это делюкс-резиденции, где за футуристичным обликом скрывается уединенное пространство для жизни высшего качества.
Дом находится в самом сердце исторической Москвы, но вдали от шумных туристических троп. Окруженный старинными переулками и скверами, проект объединяет историческую энергетику района с прогрессивной архитектурой, предлагая жителям уникальный стиль жизни.
Закрытый внутренний двор — это ландшафтный парк с зонами отдыха, водными объектами и детской площадкой. Здесь природа органично вплетена в городскую среду.
В распоряжении жителей дома клубная инфраструктура:
- падел-теннис и панорамный фитнес-зал;
- SPA, кинозал и сигарная;
- крыша-терраса с камином и водопадом;
- ивент-холл, библиотека и детская игровая.
Подземный паркинг спроектирован для автомобилей представительского класса и спорткаров. Предусмотрены зарядки для электромобилей, автомойка и услуги валет-паркинга: машину можно оставить у входа и забрать ее чистой в удобное время.
ФАНТОМ — это новый стандарт жизни, где эстетика и функциональность дарят чувство абсолютного спокойствия.
